January 9, 2017 at 1:31 pm
Hello,
I am currently assisting in the build of a replica Mk.5B and in order for the aircraft to be moved around from location to location, the wings are to be created in two halves, so that the wheels will be attached to the fuselage. Not ideal, but the easiest way for transportation.
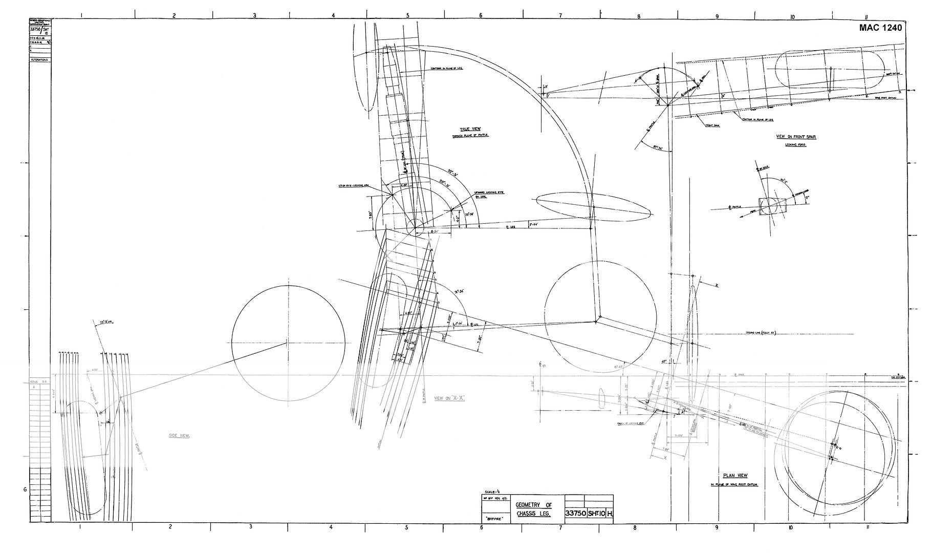
We know that the wheel track is 5ft 8ins, but looking through the plans and APs would like to know the measurement from pintle to pintle. What is proving the biggest problem is the way that she is sitting on the ground. I’d had a look through the internet, looked at various plans and drawings and it appears to be 18 degrees forward from the vertical. Hopefully an original diagram exists to show the necessary angle.
Martin
By: Graham Boak - 11th January 2017 at 20:17
I believe that the Mk.IV had the universal wing, although perhaps it may be too early for the full production standard.
By: Seafire - 11th January 2017 at 18:50
Actually, Type 337 (beginning of drawing numbers) is the “Spitfire IV”, as in Griffon. How much it (the landing gear geometry, I meant) differs from other types I can’t say.
bob
By: Graham Boak - 11th January 2017 at 10:57
These drawings are a mix of the A/B and the C wings. The earlier wing has the tyre protruding through the upper wing line, requiring a small bulge in the upper skin. As in the upper view. With the C or universal wing the wheel fits within the lower skin at the expense of a protrusion on the lower surface. This means that the door is curved in section rather than flat. As in the lower view. The universal wing has the axle 2 in (I believe) further forward, so there is a greater rake on the leg. As the Shuttleworth Mk.V is a C, this is a possible trap worth a check or two to avoid. Apologies if you know this already.
By: TonyT - 11th January 2017 at 10:30
Good to hear, I was going to offer these up, not sure of the model though






By: Sopwith - 11th January 2017 at 09:41
Glad you got it sorted Martin
By: T6flyer - 11th January 2017 at 09:28
All sorted now, with wonderful assistance from the Shuttleworth Collection. Distance between each pintle is 60″ and it is 18 degrees rake on the undercarriage legs.
Martin